septiky kruhové - dvouplášťový septik
Dvouplášťový septik (dvoukomorový nebo tříkomorový) je určen do míst, kde je vysoký výskyt spodní vody.
Tento septik je konstrukčně řešen jakou dvouplášťový, vzniklý meziplášť je nutné vybetonovat, díky tomuto opatření je zaručeno, že odolá tlakům spodní vody a nezbortí se. Dvouplášťový septik se ukládá na železo-betonovou desku.
Septik dvouplášťový je možné udělat v provedení tříkomorovém, kde funguje déle proces vyhnívání, a tím se voda v septiku lépe pročistí, nebo v provedení dvoukomorovém.
Septik proti spodní vodě je konstruován jako celoplastová uzavřená nádoba vyrobená z polypropylenových desek o síle 5-10 mm. Sváry jsou extrudované a 100% těsné.
Plastový septik je opatřen revizním otvorem (komínkem), kterým je možno kontrolovat hladiny v jednotlivých komorách. Při údržbě septiku je vhodné jednou za tři měsíce provést vizuální kontrolu hladin.
Tříkomorový plastový septik
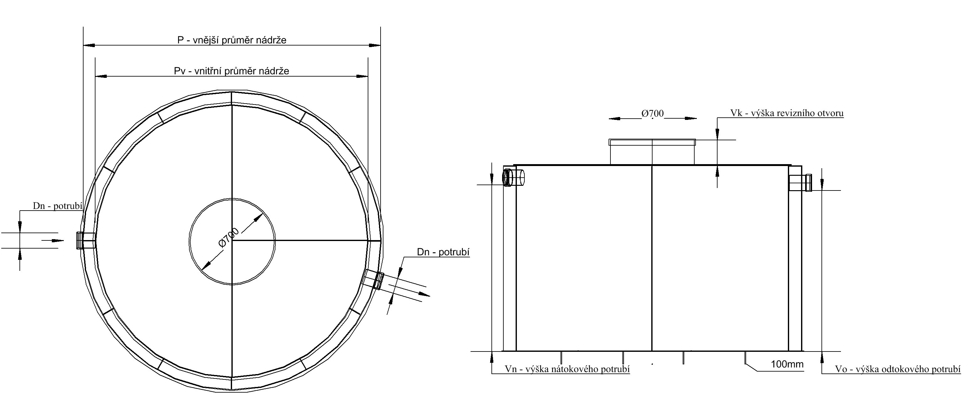
Plastový dvouplášťový septik je rozdělen na tři komory. V komorách dochází k usazování pevných částic a k jejich postupnému rozkládání. Před odtokovým potrubím je umístěna norná stěna, která zachycuje plovoucí nečistoty. Přítokové a odtokové potrubí lze opatřit ve velikostech 110, 125, 150 mm – nebo dle specifikace klienta.
Technické nákresy septiku
Nákresy jsou ke stažení v sekci dokumenty ke stažení. Klikni zde. Průměr nátokového a odtokového potrubí je ve velikostech DN110, DN125, DN160 - záleží na specifikaci zákazníka. Úhel mezi vtokem a přepadem je také možné upravit dle požadavků, standardně svírají úhel 180° (v ose). Výška revizního otvoru je možná navýšit, standardní výška 20cm.

Výhody tříkomorového plastového septiku
- Dlouhá životnost
- Odolný vůči agresivním látkám
- Dvou či tříkomorové provedení
- 100% vodotěsnost
Vyrábíme také samonosné septiky a septiky k obetonování.
Septik dvouplášťový (proti spodní vodě) 2 m3Cena: 23 690 Kčdetail produktu
Septik dvouplášťový (proti spodní vodě) 3 m3Cena: 26 090 Kčdetail produktu
Septik dvouplášťový (proti spodní vodě) 4 m3Cena: 28 590 Kčdetail produktu
Septik dvouplášťový (proti spodní vodě) 5 m3Cena: 31 490 Kčdetail produktu
Septik dvouplášťový (proti spodní vodě) 6 m3Cena: 35 390 Kčdetail produktu
Septik dvouplášťový (proti spodní vodě) 7 m3Cena: 38 690 Kčdetail produktu
Septik dvouplášťový (proti spodní vodě) 8 m3Cena: 41 990 Kčdetail produktu
Septik dvouplášťový (proti spodní vodě) 9 m3Cena: 46 290 Kčdetail produktu
Septik dvouplášťový (proti spodní vodě) 10 m3Cena: 49 290 Kčdetail produktu
Septik dvouplášťový (proti spodní vodě) 12 m3Cena: 51 390 Kčdetail produktu
Septik dvouplášťový (proti spodní vodě) 15 m3Cena: 63 890 Kčdetail produktu